Banehusene i Skjern
I øjeblikket renoverer vi de gamle museumsbygninger ved det gamle fredede vandtårn i Bredgade, Skjern.
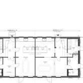
Her ombygges de eksisterende bygninger med respekt for arkitektur og kulturhistorien, til 3 nye boliger.
Alle 3 boliger bliver i 2 etager med interne trapper.
Kontakt os på
21 45 16 00, for at høre mere.
 
                                     
                                     
                                    